Courtesy of: JEREMY HUBACEK, COMPASS
(MLS# IVCOMPRIV)
Inquire About It
Schedule A Showing
About 4037 Summer Way, Corona, California, 92883
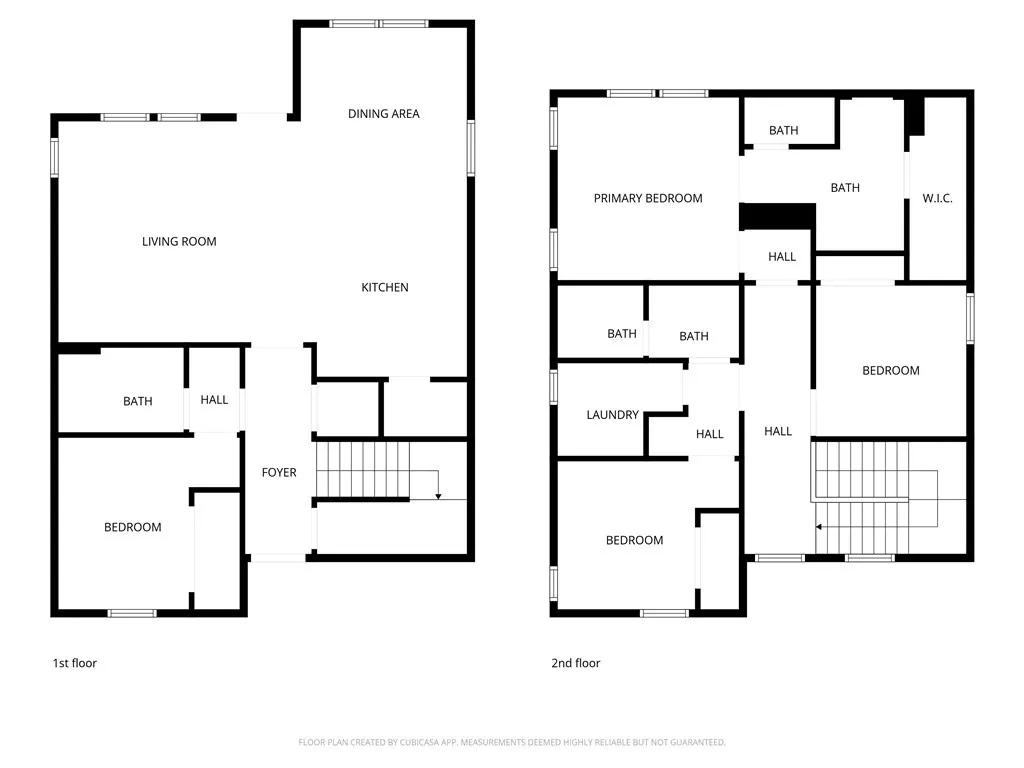
Coda at Bedford | Turnkey 2024 End-Unit Home | Seller Incentives Available! Welcome to Coda at Bedford, where this beautifully upgraded turnkey end-unit home is ideally located adjacent to the park & amenities within the gated, master-planned Bedford Community. Seller is offering assistance with buyers closing costs and/or an interest rate buy-downcreating an exceptional opportunity for added affordability and long-term savings. Built in 2024, this exceptional residence offers a highly desirable multigenerational floor plan with a first-floor bedroom and full bathroom, perfect for guests or extended family. The home features an upgraded kitchen with a pantry, designer backsplash, modern lighting, and luxury vinyl plank flooring throughout. Upstairs, enjoy a spacious primary suite, two additional guest bedrooms, and a guest bathroom with dual sinks. Indoor laundry adds everyday convenience. Step outside to your private patio, ideal for relaxing or entertaining during scenic evenings. Additional upgrades include a solar system, designer lighting, epoxy-coated garage floors, and premium finishes throughoutmaking this home truly move-in ready. The Bedford Community is conveniently located near the 15 Freeway and close to popular shopping, dining, and entertainment, including Bedford Marketplace, The Crossings at Corona, The Shops at Dos Lagos, as well as Dos Lagos and Eagle Glen Golf Courses. Situated within the highly desirable Corona-Norco Unified School District and approximately 30 minutes from Orange County. Residents of Bedford enjoy resort-style amenities including pools
Street Address: 4037 Summer Way
City: Corona
State: California
Postal Code: 92883
County: Riverside
Directions:
15 fwy exit Cajalco/Eagle Glen W, L on Bedford Canyon Rd, R Hudson House Rd, R on Parson Brown, L on Summer way
Property Information :
Listing Status: Active
Size: 1,782 Sqft
Lot Size: 0.07 Acres
MLS #: IV25279299
Bedrooms: 4 bd
Bathrooms: 3 ba
Price: $749,000
Construction Status: Built in 2024
Last Modified : May 16 2026 2:22AM
Courtesy of: JEREMY HUBACEK, COMPASS (MLS# IVCOMPRIV)