About 817 N Grant St Street, Gas City, Indiana, 46933-1067
New plumbing and ductwork have been run for the 815 property consisting of 690 square feet! New framing and subfloor in the kitchen and bath of 815 as well! Both homes have hardwood floors in them! Larger home (817) and outbuilding are in tear down condition, creating more yard space- house inspection available upon request. Two family dwellings with an outbuilding on city services included in this investor special, zoned R3, great for a duplex or two small homes- 815 and 817 N Grant St! Homes have separate utilities. A thick concrete floor is under the front half of the outbuilding! Location is 1 minute from Mississinewa High School and a few minutes from Gas City Performing Arts Center, Marion Health East, and Walnut Creek Golf Course. Properties are being sold AS IS. All debris and personal property to convey with the properties and have no value. Utilities have been shut off for showings. Hazardous Condition Disclosure Prior to Property Access must be signed. No smoking or pets on premises during showings. Buyer to verify school, lot dimensions, and interior room dimensions.
Laundry Level : Main
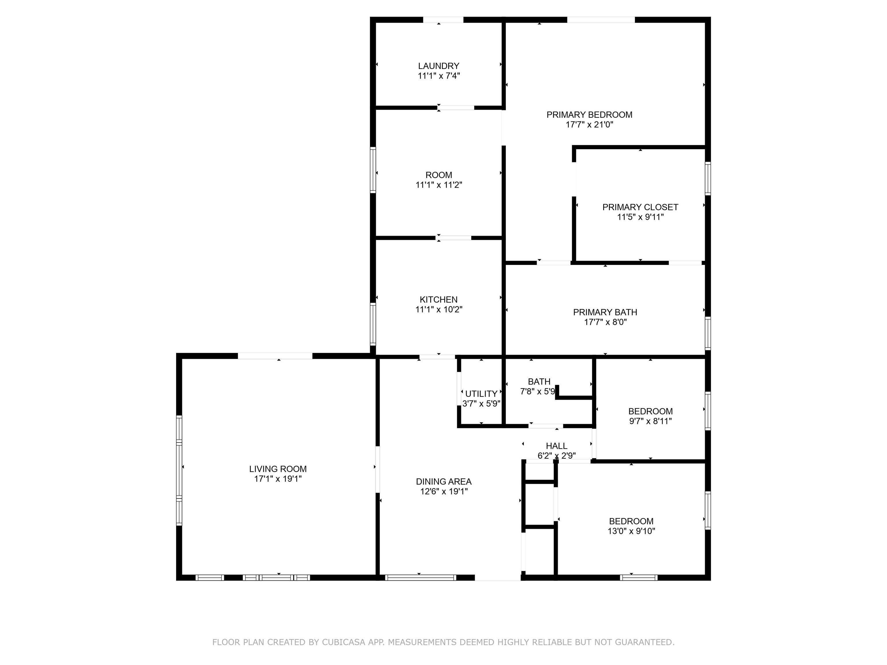
Total Rooms : 8
Above Grade Bedrooms : 3
Other Room 2 Description : Other Room
Living/Great Room Level : Main
Dining Room Level : Main
Kitchen Level : Main
1st Bedroom Level : Main
2nd Bedroom Level : Main
3rd Bedroom Level : Main
Water Utility : City
Sewer : City
Electric Company : CenterPoint Energy
Lot Description : Level
Location : City/Town/Suburb
Road Surface : Paved
Exterior : Wood
Outbuilding 1 : Outbuilding
Architectural Style : L-Type
Style : One Story
Main Level Area : 1860 S.F
Inside City Limits : Yes
Investment Property : Yes
Heating/Fuel : Conventional
Roof Material : Metal
Driveway : Asphalt
Basement/Foundation : Crawl
Amenities : Ceiling Fan(s), Ceilings-Beamed, Closet(s) Walk-in, Countertops-Laminate, Porch Covered, Split Br Floor Plan, Storm Doors, Stand Up Shower, Main Level Bedroom Suite, Main Floor Laundry
Flooring : Hardwood Floors, Carpet, Laminate
Laundry Level : Main
Total Rooms : 8
Above Grade Bedrooms : 3
Other Room 2 Description : Other Room
Living/Great Room Level : Main
Dining Room Level : Main
Kitchen Level : Main
1st Bedroom Level : Main
2nd Bedroom Level : Main
3rd Bedroom Level : Main
Water Utility : City
Sewer : City
Electric Company : CenterPoint Energy
Lot Description : Level
Location : City/Town/Suburb
Road Surface : Paved
Exterior : Wood
Outbuilding 1 : Outbuilding
Architectural Style : L-Type
Style : One Story
Main Level Area : 1860 S.F
Inside City Limits : Yes
Investment Property : Yes
Heating/Fuel : Conventional
Roof Material : Metal
Driveway : Asphalt
Basement/Foundation : Crawl
Amenities : Ceiling Fan(s), Ceilings-Beamed, Closet(s) Walk-in, Countertops-Laminate, Porch Covered, Split Br Floor Plan, Storm Doors, Stand Up Shower, Main Level Bedroom Suite, Main Floor Laundry
Flooring : Hardwood Floors, Carpet, Laminate

Street Address: 817 N Grant St Street
City: Gas City
State: Indiana
Postal Code: 46933-1067
Directions: From W Main St/ US 35/ IN-22 turn onto N Grant St. Property is at the intersection of N Grant St and W North G St

Property Information :
Listing Status: Sold
Size: 1,860 Sqft
Lot Size: 0.36 Acres
MLS #: 202513389
Bedrooms: 3 bd
Bathrooms: 2 ba
Price: $55,000
Tax Amount: 2722.4
Construction Status: Built in 1960
Last Modified : Aug 5 2025 5:35AM
Amenities :
Outbuildings

Courtesy of: Claire Oliver, KW Red Door Group (MLS# 10402)
Source MLS: IRMLS