About VILLALAGOS DE AVILA, Lutz, Florida, 33548
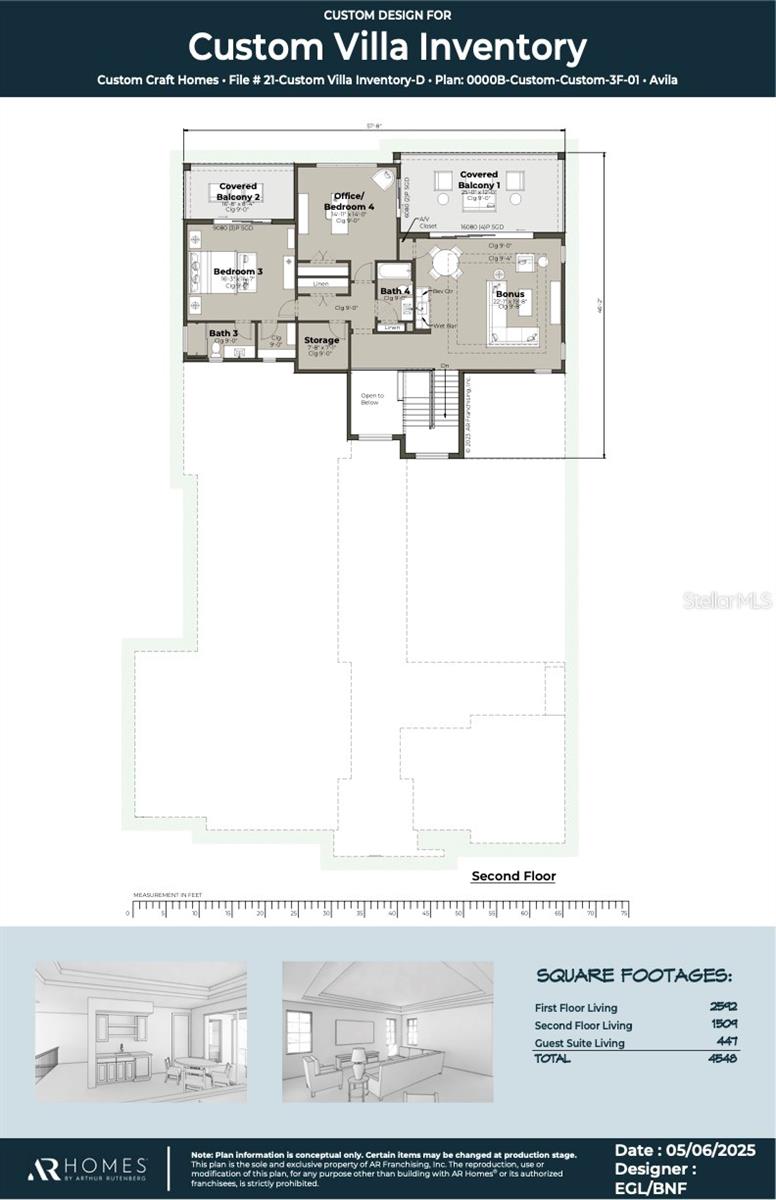
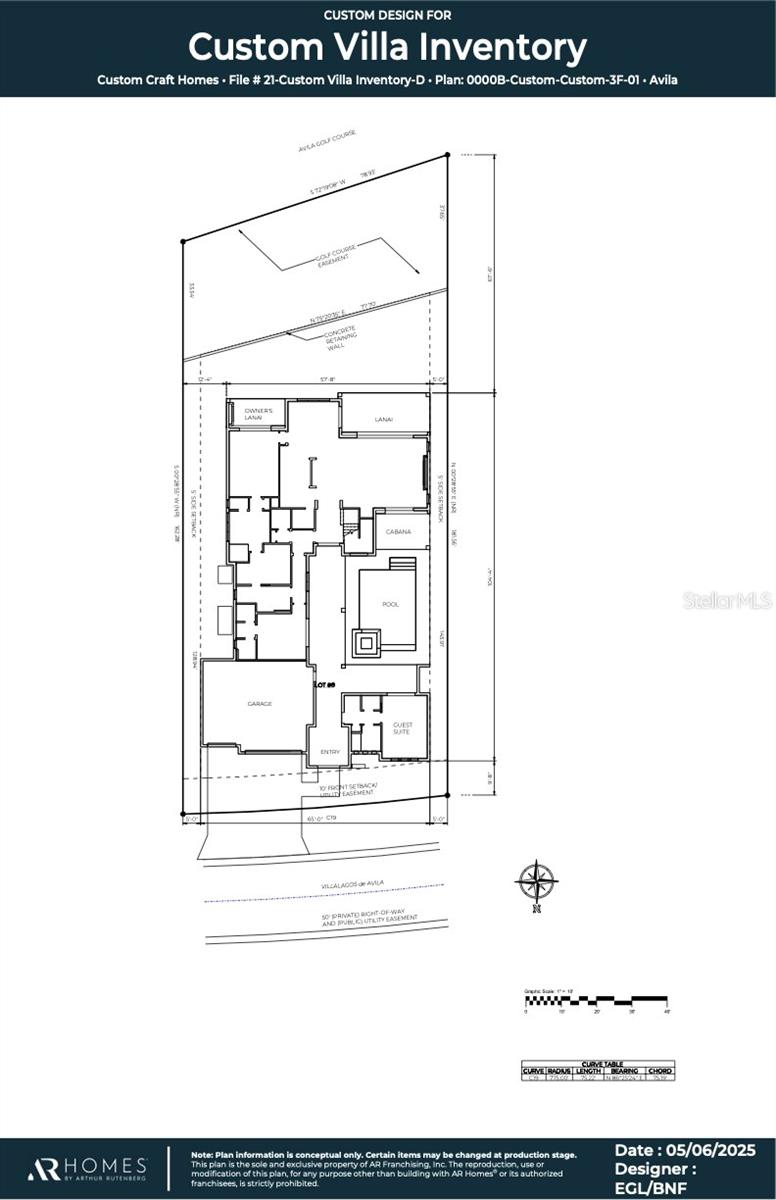
Pre-Construction. To be built. Private Collection Custom Spanish-Mission Style Luxury Villa by AR Homes (Arthur Rutenberg) on the Golf Course in Avila - Wake up to sweeping golf course and water views as you build your custom dream home in Avila, one of Tampa Bay’s most sought-after guard-gated communities. Perfectly positioned along the 2nd tee box, this custom-designed villa offers a rare blend of privacy, scenery, and timeless design. At the heart of the home, a private interior courtyard creates a true resort-like setting, featuring a pool, spa, and outdoor kitchen designed for year-round Florida living. Inside, a well-designed layout includes a luxurious owner’s retreat, private guest suite/casita, expansive great room, and second-floor bonus space, offering flexibility for family and guests. This home is part of AR Homes’ Private Collection, representing their highest level of design, finishes, and craftsmanship—featuring a chef’s kitchen with Wolf and Sub-Zero appliances, a dedicated wine storage feature, and a curated selection of high-end materials throughout. Permit has been approved, allowing a faster path to construction. There is still time for a buyer to personalize selections and tailor the home to their individual style. This is a unique opportunity to own a custom home on the golf course in Avila—combining location, design, and personalization in a way that is rarely available. Contact the listing agent for full specifications, design options, and timeline details.
Utilities : Electricity Available
Water Access : 0
Sewer : Public Sewer
Road Surface Type : Asphalt
Zoning : PD
Utilities : Electricity Available
Water Access : 0
Sewer : Public Sewer
Road Surface Type : Asphalt
Zoning : PD

Street Address: VILLALAGOS DE AVILA
City: Lutz
State: Florida
Postal Code: 33548
County: Hillsborough
Directions: I-275 to Bearss Ave; North on Hwy 41 to Crenshaw Lake Rd on left. Left on Crenshaw Lake to Avila guard gate entrance on left. Proceed to VillaLagos de Avila on left.

Property Information :
Listing Status: Active
Size: 4,548 Sqft
Lot Size: 0.30 Acres
MLS #: TB8492892
Bedrooms: 5 bd
Bathrooms: 6 ba
Price: $2,999,990
Tax Amount: 5393.93
Last Modified : Apr 2 2026 8:40AM

Courtesy of: Chris Conti, CHARLES RUTENBERG REALTY INC (MLS# 260000779)
Source MLS: StellarMLS